Estudio con terraza · Paseo Santa Lucía · Entrega 2025
Barrio Antiguo, Monterrey, Nuevo León
- $3,519,000 MXN En Venta
-
- $18,000 MXN/mes
- 1 Recámaras
- 1 Baños
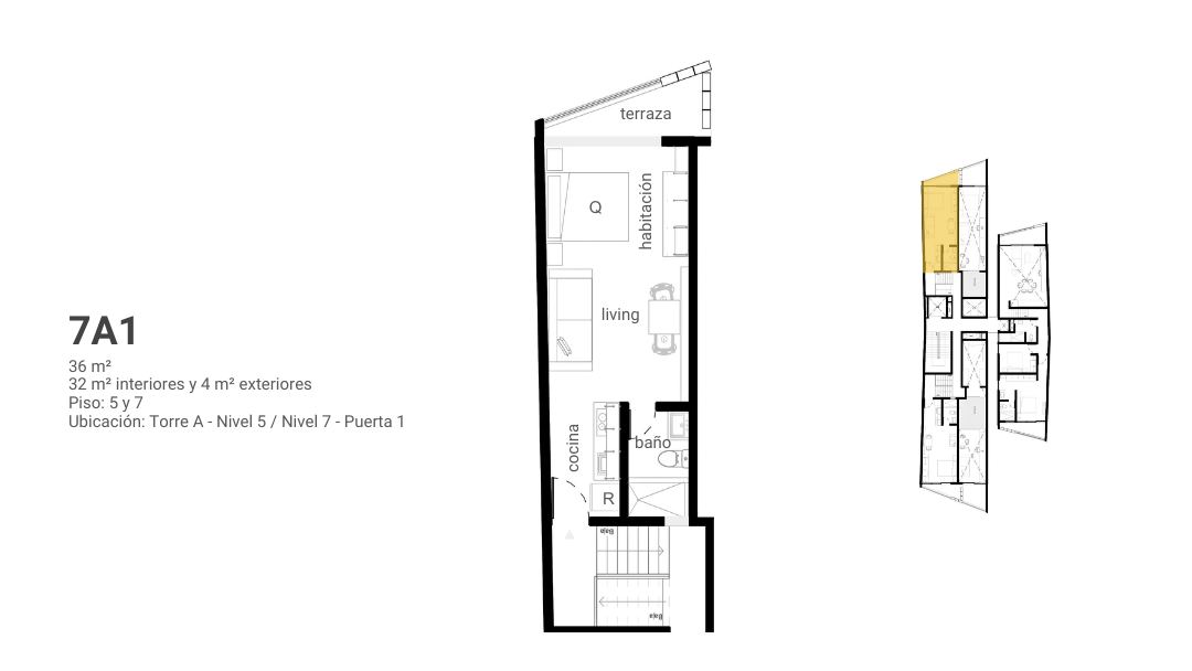
- 36 m² de construcción
Ver Tour Virtual
Detalles
- Estadía mínima: 1 noches
- Tipo: Departamento
- ID: EB-SO3367
- Clave interna: JUA_7A1
- Antigüedad: A estrenar
- Huéspedes: 2
- Recámaras: 1 recámara
- Baños: 1
- Piso: 7
- Mantenimiento: 3542
Descripción
Vive en Paseo Santa Lucía dentro de un edificio íntimo de solo 18 hogares con entrega en 2025. Hogares hermosos, bien hechos, con luz natural y aire fresco durante todo el día.
Tu hogar
- 1 habitación
- 1 baños
- Terraza privada
Sin ruido
- 100% Muros de block
- 100% Vidrios dobles
- Sin humedad
- Ventanas operables para ventilar
- Triple capa impermeable
Nido Santa Lucía
Diseño del despacho premiado Greenfield en Paseo Santa Lucía. Conjunto limitado a 18 hogares de 1, 2 y 3 habitaciones, con entrega en 2025.
Datos del edificio
- 2 calles de acceso
- 7 pisos
- 20 cajones
Sin calor, sin frío
- Aislamiento térmico R10 en muros
- Aislamiento térmico R20 en losas
Tu hogar
- 1 habitación
- 1 baños
- Terraza privada
Sin ruido
- 100% Muros de block
- 100% Vidrios dobles
- Sin humedad
- Ventanas operables para ventilar
- Triple capa impermeable
Nido Santa Lucía
Diseño del despacho premiado Greenfield en Paseo Santa Lucía. Conjunto limitado a 18 hogares de 1, 2 y 3 habitaciones, con entrega en 2025.
Datos del edificio
- 2 calles de acceso
- 7 pisos
- 20 cajones
Sin calor, sin frío
- Aislamiento térmico R10 en muros
- Aislamiento térmico R20 en losas
Amenidades
- Balcón
- Cisterna
- Estacionamiento techado
- Roof garden
- Terraza
- Cocina equipada
- Elevador
- Mascotas permitidas
Ubicación
Barrio Antiguo, Monterrey, Nuevo León
Contáctanos



